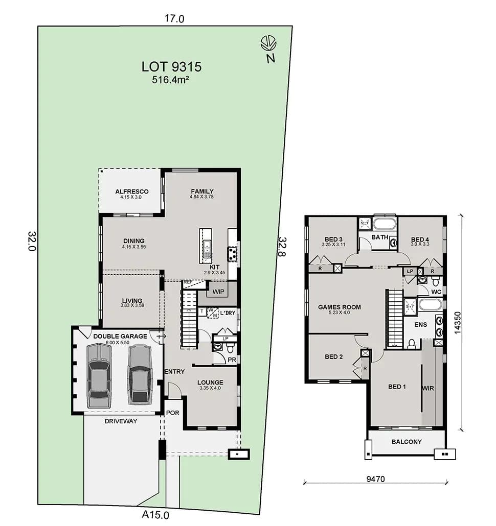
Lot 9315, Waterford, Chisholm
Forecast completion date: September 2026Only 5% deposit
Forsyth 30, Montague Facade
Lot size:
516.40m2

Connect Premium Inclusions
Advantage Series
Forsyth home design
The Forsyth is a spacious double-storey home with versatile zones and master retreat.

Waterford Estate
at a glance
- Nestled amongst nature and boasting scenic views
- Easy reach to quality health Services
- 35 minutes’ drive to Newcastle
Featured Promotions






